Skip to Content

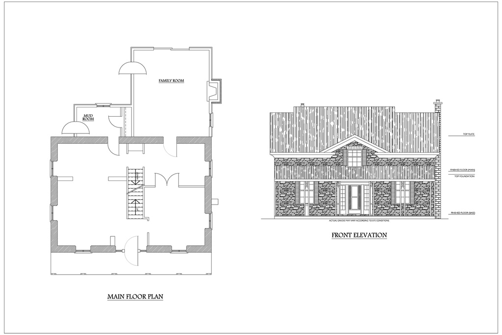
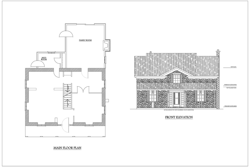
Plan 153 - Multi Storey Addition

https://portal.ineng.ca/web/image/product.template/336/image_1920?unique=3c01946

Addition: 2 Storey Addition Family room, Master Bedroom, Mud room.

100.00 100.0 CAD 100.00

Not Available For Sale

  • File Type

This combination does not exist.

File Type: PDF Vector

Terms and Conditions
All sales are final, no refunds will be issued on digital products. 
These plans cannot be used for permit nor construction. Contact your local building department for more information.