Skip to Content

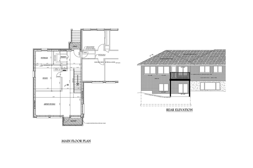
Plan 165 Single Storey with Artist Studio

https://portal.ineng.ca/web/image/product.template/326/image_1920?unique=3c01946

About Plan: Single Storey House Plan has Artist studio and storage.

100.00 100.0 CAD 100.00

Not Available For Sale

  • File Type

This combination does not exist.

File Type: PDF Vector

Terms and Conditions
All sales are final, no refunds will be issued on digital products. 
These plans cannot be used for permit nor construction. Contact your local building department for more information.