Skip to Content

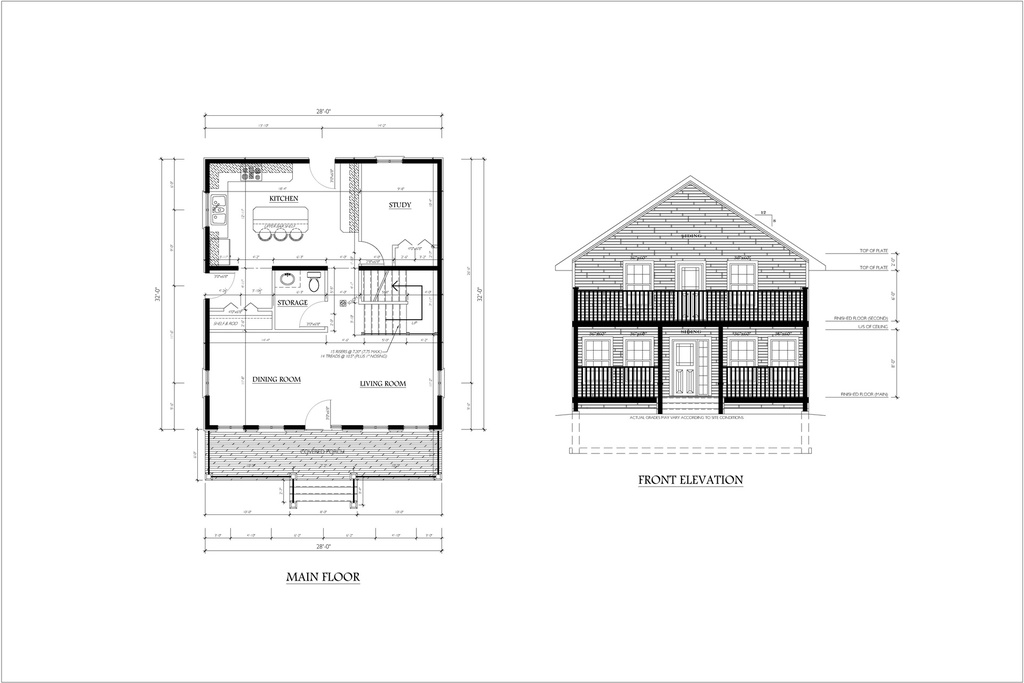
Plan 175 Multi Storey with Master Bedroom and Study Room

https://www.portal.ineng.ca/web/image/product.template/324/image_1920?unique=3c01946

About Plan: Multi Storey house plan has 2 Bedrooms and bath, a Living, a Dinning room, a kitchen, Study room and Storage.

100.00 100.0 CAD 100.00

Not Available For Sale

This combination does not exist.

Terms and Conditions
All sales are final, no refunds will be issued on digital products. 
These plans cannot be used for permit nor construction. Contact your local building department for more information.