Skip to Content

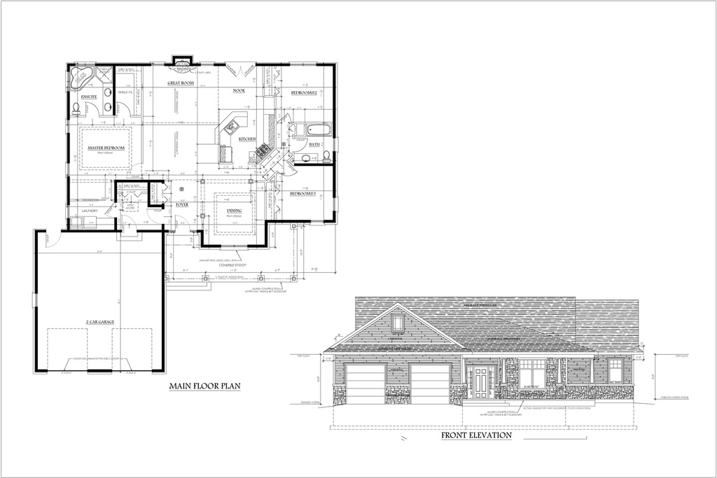
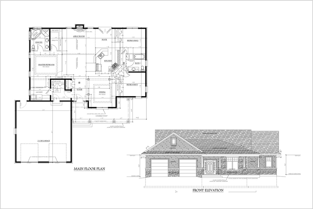
Plan 280 Single Storey with 3 Bedrooms

https://www.portal.ineng.ca/web/image/product.template/215/image_1920?unique=3c01946

About Plan: Single Storey House Plan has 2 Bedrooms and Bath, a Great room, a Dinning room, a kitchen, Laundry, sun room and 2 Car Garage.

5.00 5.0 CAD 100.00

Not Available For Sale

  • File Type

This combination does not exist.

File Type: PDF Vector

Terms and Conditions
All sales are final, no refunds will be issued on digital products. 
These plans cannot be used for permit nor construction. Contact your local building department for more information.