Skip to Content

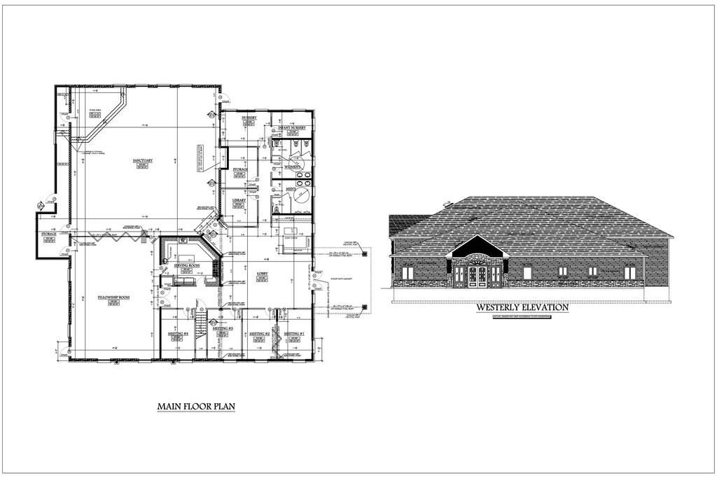
Plan 299 - Commercial Single Storey Plan with 4 Meeting rooms

https://portal.ineng.ca/web/image/product.template/388/image_1920?unique=3c01946

About Plan: Commercial Single Storey Plan has 4 Meeting rooms and bath, Lobby, Fellowship room, Serving room, Library , Storage, Sanctuary and Nursery.

100.00 100.0 CAD 100.00

Not Available For Sale

  • File Type

This combination does not exist.

File Type: PDF Vector

Terms and Conditions
All sales are final, no refunds will be issued on digital products. 
These plans cannot be used for permit nor construction. Contact your local building department for more information.