Skip to Content

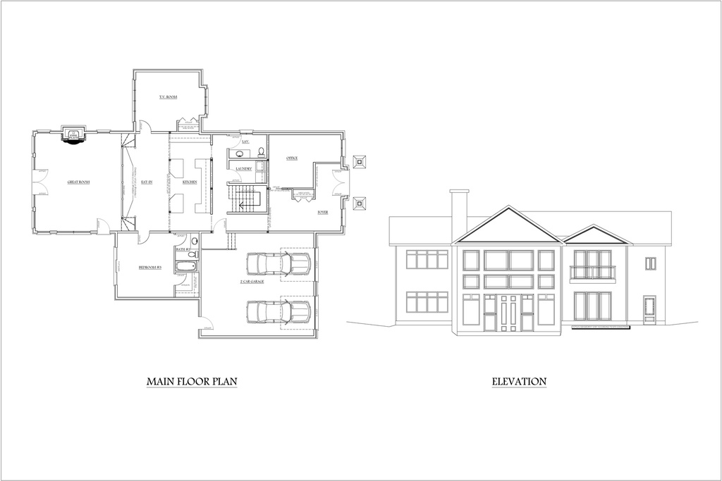
Plan 300 Multi Storey with Office, Den and Playroom

https://www.portal.ineng.ca/web/image/product.template/297/image_1920?unique=3c01946

About Plan: Multi storey house plan has 3 Bedrooms and bath, a Great room, a kitchen Eat-In, Tv room, Home gym, Play room, Office, Laundry and 2 Car Garage.

100.00 100.0 CAD 100.00

Not Available For Sale

  • File Type

This combination does not exist.

File Type: PDF Vector

Terms and Conditions
All sales are final, no refunds will be issued on digital products. 
These plans cannot be used for permit nor construction. Contact your local building department for more information.