Skip to Content

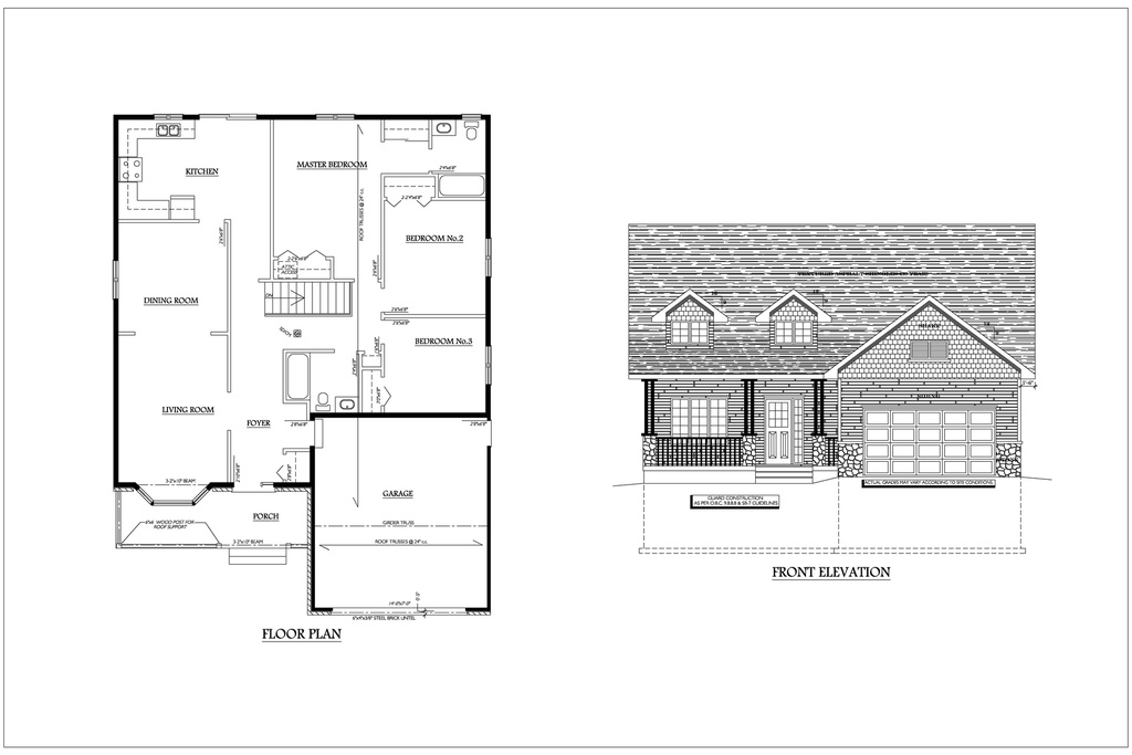
Plan 326 Single Storey with 3 Bedrooms and Garage

https://portal.ineng.ca/web/image/product.template/328/image_1920?unique=11c379c

About Plan: Single Storey House Plan has 3 Bedrooms with bath, a Living room, a kitchen, Dinning room and Garage.

5.00 5.0 CAD 100.00

Not Available For Sale

  • File Type

This combination does not exist.

File Type: PDF Vector

Terms and Conditions
All sales are final, no refunds will be issued on digital products. 
These plans cannot be used for permit nor construction. Contact your local building department for more information.