Skip to Content

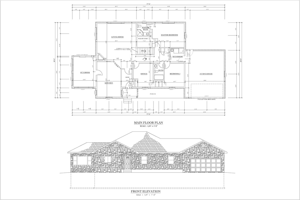
Plan 4468 Single Storey 2 Bedrooms and Office Room

https://portal.ineng.ca/web/image/product.template/243/image_1920?unique=11c379c

About Plan: Single Storey House Plan has 2 Bedroom and bath, a Living room, a Study/Office room, a Kitchen, a Sun room, a Mud room, Walk-in-closet and 2 Car Garage.

5.00 5.0 CAD 100.00

Not Available For Sale

  • File Type

This combination does not exist.

File Type: PDF Vector

Terms and Conditions
All sales are final, no refunds will be issued on digital products. 
These plans cannot be used for permit nor construction. Contact your local building department for more information.